當前位置: 丝瓜视频污版振動篩廠家 > 產品中心 > 輸送機械 > 正文

適用物料:箱、包、托盤
價格區間:200-5000米/米
處理能力:10-100T/H
產品別名:輸送機
索要優惠報價
銷售熱線:
13782587121
滾筒輸送機常見的有兩種有動力和無動力,可水平、傾斜、轉彎等多擺放形式,適用於各類箱、包、托盤等件貨的輸送,散料、小件物品或不規則的物品需放在托盤上或周轉箱內輸送。滾筒輸送機內寬度由客戶指定,可按客戶需求製作,轉彎滾線標準轉彎內半徑為300、600、900、1200mm等,也可按客戶需求采用其它特殊規格。
丝瓜视频污版滾筒輸送機特點:
1.滾筒式輸送機適用於各類箱、包、托盤等件貨的輸送,散料、小件物品或不規則的物品需放在托盤上或周轉箱內輸送。
2.滾筒式輸送機能夠輸送單件重量很大的物料,或承受較大的衝擊載荷。
3.結構形式多樣,滾筒式輸送機按驅動方式可分為動力滾筒線和無動力滾筒線,按布置形式可分為水平輸送滾筒線、傾斜輸送滾筒線和轉彎輸送滾筒線。還可按客戶要求特殊設計,以滿足各類客戶的各種要求。
4.滾筒線之間易於銜接過渡,可用多條滾筒線及其它輸送設備或專機組成複雜的物流輸送係統,完成多方麵的工藝需要。
5.可采用積放滾筒實現物料的堆積輸送。
6.結構簡單,可靠性高,使用維護方便。
現代的生產加工型企業,普遍采用伸縮輸送機輸送物料的方式來進行生產運輸,以此來提高生產作業的輸送機生產作業勞動時間。在伸縮皮帶機作業進行生產輸送以 及物流運輸的係統中,自由滾筒輸送機取代了在生產作業中的手動驅動輸送方式,並能改變其它驅動輸送帶輸送的運行方向。自由滾筒輸送機是在進行生產作業運輸 物料時,生產作業人員通過人工推送物料的輸送方式,以此來達到運輸物料的目的。自由滾筒輸送機是一種應用於自動化總裝生產線的輸送設備。
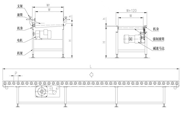
滾筒輸送機主要由輥子、機架、支架、驅動部份等組成,輥筒,滾筒輸送機是依靠轉動著的輥子和物品間的摩擦使物品向前移動.按其驅動形式可分為無動力滾筒輸送機、動力滾筒輸送機.在動力滾筒輸送機中,驅動輥子的方法一般不在采用單獨驅動的方式,而是多采用成組驅動,常用電機與減速器組合,再通過鏈傳動、帶傳動來驅動輥子旋轉.
定製滾筒輸送機請致電或請確認以下技術參數:
1、輸送物體的長度、寬度和高度;
2、每一輸送單元的重量;
3、輸送物的底部狀況;
4、有無特殊工作環境上的要求(比如:濕度,高溫,化學品的影響等);
5、輸送機屬於無動力式或電機帶動式。
為確保貨物能夠平穩輸送,必須在任何時間點都至少有三隻滾筒與輸送物保持接觸。對軟袋包裝物必要時應加托盤輸送。
1、滾筒的長度選擇:
不同寬度的貨物應選適合寬度的滾筒,一般情況下采用“輸送物+50mm”。
2、滾筒的壁厚及軸徑選擇:
按照輸送物的重量平均分配到接觸的滾筒上,計算出每支滾筒的所需承重,從而確定滾筒的壁厚及軸徑。
3、滾筒材料及表麵處理 :
根據輸送環境的不同,確定滾筒所采用的材質和表麵處理(碳鋼鍍鋅、不鏽鋼、發黑還是包膠)。
4、選擇滾筒的安裝方式 :
根據整體輸送機的具體要求,選擇滾筒的安裝方式: 彈簧壓入式, 內牙軸式, 全扁榫式, 通軸銷孔式等。
對於彎道機的錐形滾筒,其滾麵寬度及錐度視貨物尺寸和轉彎半徑而定。
滾筒輸送機安全操作規程
一、滾筒輸送機應按規定的安裝方法安裝在固定的基礎上。滾筒輸送機正式運行前應將輪子用三角木楔住或用製動器刹住。以免工作中發生走動,有多台輸送機平行作業時,機與機之間,機與牆之間應有一米的通道。
二、滾筒輸送機使用前須檢查各運轉部分、膠帶搭扣和承載裝置是否正常,防護設備是否齊全。膠帶的漲緊度須在啟動前調整到合適的程度。
三、滾筒輸送機應空載啟動。等運轉正常後方可入料。禁止先入料後開車。
四、有數台輸送機串聯運行時,應從卸料端開始,順序起動。全部正常運轉後,方可入料。
七、輸送帶上禁止行人或乘人。
八、停車前必須先停止入料,等皮帶上存料卸盡方可停車。
十、皮帶打滑時嚴禁用手去拉動皮帶,以免發生事故。
Copyright(C) 豫ICP備76997469號