當前位置: 丝瓜视频污版振動篩廠家 > 產品中心 > 輕型精細篩分機 > 正文

適用物料:化工、糧食加工、耐火材料、建材
價格區間:10000-100000元/台
處理能力:100-500t/h
產品別名:平麵往複篩
索要優惠報價
銷售熱線:
13782587121
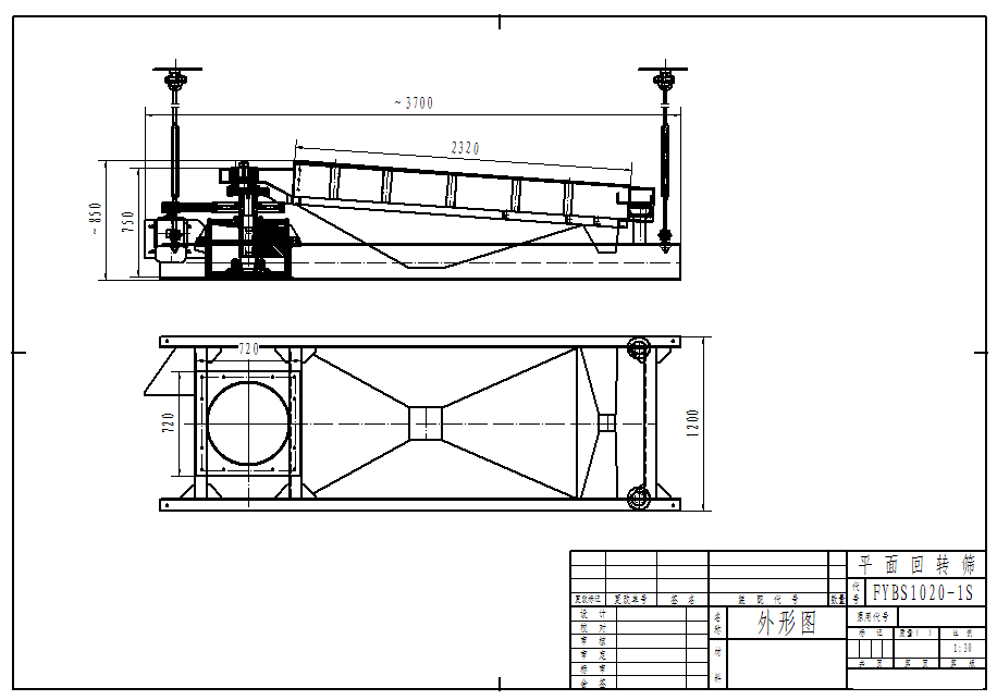
平麵回轉篩傾角為5~10°的篩體由傳動裝置驅動。物料運動軌跡在進料端為水平圓周運動,在長度方向逐漸變成橢圓運動,最後在出料端轉變成近似往複直線運動。 通過進料口喂入的物料,在平麵回轉篩體運動作用下,均勻的分布在整個篩網上,並產生自動分級,從而使料層下粒度較小的物料迅速過篩,而上麵粒度相對較大的物料則向出料端運動。在移動過程中,由於沒有攪拌和垂直跳動,因而其中較小的顆粒緊貼篩麵,隨時可以過篩。
出料端篩體的運動為近似往複直線運動,是篩理作用逐漸減弱。從而使大於篩孔尺寸的顆粒迅速向出口方向移動,直到排出機外,完成物料的整個篩分。在篩理過程中,不斷跳動的彈性跳動小球,有效地防止物料堵塞篩孔,保證了篩理的高效率。平衡塊使篩體在運動的過程中各個方向的慣性力都得以平衡,從而保證了篩體運動的平穩性
|
層數 |
型號 |
篩麵規格 |
篩箱行程 |
電動機 |
A |
B |
C |
D |
重量 |
|
|
功率 |
轉速 |
|||||||||
|
1 |
ACPM1000X1400 |
1000X1400 |
63.5 |
1.5 |
960 |
2731 |
962 |
1168 |
1200 |
715 |
|
ACPM1000X2100 |
1000X2100 |
63.5 |
1.5 |
960 |
3285 |
962 |
1156 |
1200 |
980 |
|
|
ACPM1000X3000 |
1000X3000 |
63.5 |
1.5 |
960 |
4484 |
1035 |
1194 |
1251 |
1200 |
|
|
ACPM1500X2100 |
1500X2100 |
63.5 |
1.5 |
960 |
3460 |
1003 |
1708 |
1759 |
1380 |
|
|
ACPM1500X3000 |
1500X3000 |
76 |
2.2 |
960 |
4232 |
1362 |
1778 |
1892 |
1340 |
|
|
ACPM1500X3600 |
1500X3600 |
76 |
5.5 |
960 |
5098 |
1352 |
1956 |
2048 |
2410 |
|
|
ACPM1200X3600 |
1200X3600 |
76 |
5.5 |
960 |
5263 |
1327 |
2464 |
2556 |
2020 |
|
|
2 |
ACPM1000X2100 |
1000X2100 |
63.5 |
1.5 |
960 |
3743 |
1121 |
1308 |
1378 |
1400 |
|
ACPM1000X3000 |
1000X3000 |
76 |
4 |
960 |
4575 |
1317 |
1270 |
1546 |
1840 |
|
|
ACPM1500X2100 |
1500X2100 |
63.5 |
4 |
960 |
3728 |
1330 |
1781 |
1946 |
1710 |
|
|
ACPM1800X3600 |
1800X3600 |
76 |
7.5 |
960 |
5305 |
1500 |
2256 |
2459 |
3880 |
|
|
ACPM1500X3000 |
1500X3000 |
76 |
7.5 |
960 |
4765 |
1397 |
1956 |
2159 |
2780 |
|
|
ACPM1500X3600 |
1500X3600 |
76 |
7.5 |
960 |
5365 |
1368 |
2032 |
2159 |
3180 |
|
|
3 |
ACPM1000X2100 |
1000X2100 |
63.5 |
5.5 |
960 |
4854 |
1422 |
1435 |
1549 |
2150 |
|
ACPM1500X3000 |
1500X3000 |
76 |
5.5 |
960 |
4765 |
1391 |
1956 |
2159 |
3200 |
|
|
ACPM1800X3600 |
1800X3600 |
76 |
7.5 |
960 |
5200 |
1500 |
2400 |
2500 |
4170 |
|
|
ACPM2000X5000 |
2000X5000 |
92 |
11 |
960 |
5400 |
2000 |
2750 |
2810 |
5500 |
|
Copyright(C) 豫ICP備76997469號